Добро пожаловать на http://vipplan.ru

Випплан Армавир - это тысячи проектов домов в нашем каталоге!

Вы всегда сможете найти для себя проект дома вашей мечты! Даже если этого не случилось, мы готовы в любую минуту предложить проект индивидуального дома.

Забыли пароль?
Вы еще не регистрировались?

Перейдите по ссылке ниже на страницу регистрации.

Регистрация...

Внимание!!!

В проектную документацию могут быть внесены изменения любой сложности, в соответствии в Вашими пожеланиями!

Полезные статьи

Выбор сайдинга

Прежде чем купить сайдинг, нужно определиться зачем он нужен: для защиты фасада от непогоды, для придания привлекательности внешнему виду дома или для утепления дома.Что же из себя представляет сайдинг? Сайдинг – это материал для облицовки фасада из компаунда. В данной статье мы поможем Вам определиться выбором сайдинга для отделки фасада дома...

Где копать колодец?

Водоснабжение за городом - Армавир всегда было проблематичным. При отсутствии центрального водоснабжения остается только один выход – выкопать колодец. Водоносный пласт есть не везде. Как же определить, где копать колодец?...

Проекты домов и коттеджей > Каталог проектов домов > Двухэтажный дом с гаражом на 2 машины, террасой и балконами Vg1135

Двухэтажный дом с гаражом на 2 машины, террасой и балконами Vg1135

Двухэтажный дом с гаражом на 2 машины, террасой и балконами
Зарегистрируйтесь

Проект № Vg1135


Техническое описание
Общая площадь: 262.82 м2
Жилая площадь: 107.09 м2
Высота здания: 9.28 м
Размеры дома: 18.58м×17.06м
Кол-во комнат: 7
Цокольный этаж: нет
Гараж: нет
Мансарда: нет

Kонструкция
Фундамент: Стена в грунте ("щелевой")
Перекрытия: Ж/б плиты
Материал стен: Керамоблок

Архитектурный раздел
Конструктивный раздел
АР+КР - 72 000 (Со скидкой 20%)
Проект индивидуального двухтажного жилого дома с размерами здания 18,58 x 17,06 м. Наружная отделка здания – фасадная плитка. Фундамент – стена в грунте ("щелевой"). Наружные стены – керамические блоки с облицовочной плиткой. Внутренние стены - из керамических блоков Перегородки – из кирпича. Пол первого этажа - пол по грунту. Межэтажное перекрытие - ж/б плиты перекрытия. Чердачное перекрытие - деревянные балки. Крыша многоскатная. Кровля – металлочерепица. Окна - металлопластиковые, выполненные по индивидуальному заказу.
Генплан застройки участка / Паспорт проекта 7000 руб / 10000 руб
Инженерный раздел (полный) 131500 руб
Смета на строительство 65750 руб
Теплотехнический расчет материалов стен Бесплатно
Стоимость проекта со незначительнми изменениями 83400 руб
Стоимость проекта со средними изменениями* 103200 руб
Стоимость проекта со значительными изменениями** 108400 руб

План первого этажа


Тамбур — 3,04 кв м
С/у — 3,97 кв м
Бойлерная — 8,34 кв м
Гараж — 38,87 кв м
Кладовая — 3,34 кв м
Кухня — 12,12 кв м
Холл — 9,43 кв м
Кабинет — 10,95 кв м
Столовая — 15,15 кв м
Гостиная — 29,25 кв м

Двухэтажный дом с гаражом на 2 машины, террасой и балконами

Двухэтажный дом с гаражом на 2 машины, террасой и балконами

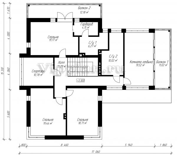
План второго этажа


Балкон 1 — 11,02 Комната — 19,52 кв м
С/у 2 — 10,02 кв м
С/у 1 — 6,27 кв м
Гардероб — 4,15 кв м
Балкон 2 — 12,18 кв м
Спальня — 19,17 кв м
Холл — 13,29 кв м
Спортзал — 10,78 кв м
Спальня — 19,46 кв м
Спальня — 18,71 кв м
Двухэтажный дом с гаражом на 2 машины, террасой и балконами Двухэтажный дом с гаражом на 2 машины, террасой и балконами Двухэтажный дом с гаражом на 2 машины, террасой и балконами Двухэтажный дом с гаражом на 2 машины, террасой и балконами

Модификации проектов

Внесение изменений и привязка к участку строительства

В любой из проектов от компании VIPplan - Армавир по вашему желанию могут быть внесены изменения в материалы стен, материалы наружной отделки дома, а также будет произведена адаптация проекта под конкретный регион строительства (с учетом грунтов региона, геологических особенностей вашего участка и местных климатических условий) - БЕСПЛАТНО !!! (кроме проектов со скидкой и проектов наших партнеров).

Любой из проектов, размещенных на сайте armavir.vipplan.ru мы можем выполнить из требуемых вам строительных материалов: ячеистый бетон (газобетон, пеноблок), керамоблок, кирпич, шлакоблок, бетонный блок, дерево (брус, клееный брус), каркасная технология (деревянный каркас, металлокаркас (ЛСТК)).

Фасад дома и его наружную отделку так же возможно выполнить с применением различных облицовочных материалов: структурной штукатурки, (с утеплителем и без), сайдингом (пластиковый или металлосайдинг), фиброплитами, кирпича.

 
6 Избранные
проекты

Доставка проектов по России: Москва (Московская область), Санкт-Петербург (Ленинградская область), Краснодар, Ростов-на-Дону, Ставрополь, Сочи, Волгоград, Новосибирск, Белгород, Брянск, Воронеж, Саратов, Хабаровск, Астрахань, Нальчик, Владикавказ, Екатеринбург, Тюмень, Самара, Нижний Новгород, Казань, Пермь, Уфа, Челябинск, Красноярск, Ханты-Мансийск, Иркутск, Курган, Оренбург, Омск, Томск, Барнаул, Новокузнецк, Кемерово, Абакан, Чита, Якутск, Южно-Сахалинск, Петропавловск-Камчатский и страны ближнего зарубежья: Белоруссия, Украина, Казахстан