Добро пожаловать на http://vipplan.ru

Випплан Армавир - это тысячи проектов домов в нашем каталоге!

Вы всегда сможете найти для себя проект дома вашей мечты! Даже если этого не случилось, мы готовы в любую минуту предложить проект индивидуального дома.

Забыли пароль?
Вы еще не регистрировались?

Перейдите по ссылке ниже на страницу регистрации.

Регистрация...

Внимание!!!

В проектную документацию могут быть внесены изменения любой сложности, в соответствии в Вашими пожеланиями!

Полезные статьи

Как сделать мансардную крышу

Мансарда - обеспечивает дополнительную жилую площадь одно- или двухуровневой постройке за счет подкровельного пространства и, благодаря видимым элементам конструкции крыши, выполняет немаловажную эстетическую функцию. Дома с мансардой достаточно распространены в Краснодарском крае благодаря своей привлекательности и неповторимости. ...

Монолитный коттедж с несъемной опалубкой

Перед тем, как вы задумаетесь о строительстве своего коттеджа, необходимо выбрать, сами вы будете руководить строительством, нанимать разных рабочих, или будете обращаться в строительную фирму, и заключать с ними договор. Но даже к этому вопросу нужно подходить правильно, обдумав все плюсы и минусы выбора....

Проекты домов и коттеджей > Каталог проектов домов > Проект комфортного двухэтажного коттеджа Vg1184

Проект комфортного двухэтажного коттеджа Vg1184

Проект комфортного двухэтажного коттеджа
Зарегистрируйтесь

Проект № Vg1184


Техническое описание
Общая площадь: 70.73 м2
Жилая площадь: 41.31 м2
Высота здания: 7.17 м
Размеры дома: 5.98м×8.98м
Кол-во комнат: 3
Цокольный этаж: нет
Гараж: нет
Мансарда: нет

Kонструкция
Фундамент: Ленточный
Перекрытия: Деревянные балки
Материал стен: Газобетон

Архитектурный раздел
АР+КР - 40 000 (Со скидкой 20%)
Проект индивидуального одноэтажного жилого дома с размерами 5,98 x 8,98 м. Наружная отделка здания – облицовочным кирпичом. Цоколь – клинкерная плитка. Фундамент — ленточный монолитный ж/б. Наружные стены запроектированы из: газобетонного блока Внутренние стены и перегородки: из забутовочного кирпича Окна - металлопластиковые, выполненные по индивидуальному заказу.
Генплан застройки участка / Паспорт проекта 7000 руб / 10000 руб
Инженерный раздел (полный) 50000 руб
Смета на строительство 25000 руб
Теплотехнический расчет материалов стен Бесплатно
Стоимость проекта со незначительнми изменениями 48200 руб
Стоимость проекта со средними изменениями* 53600 руб
Стоимость проекта со значительными изменениями** 55000 руб

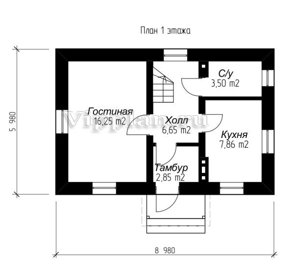
План первого этажа


Тамбур — 2,85 м2
Холл — 6,65 м2
Гостиная — 16,25 м2
С/у — 3,50 м2
Кухня — 7,86 м2

Проект комфортного двухэтажного коттеджа

Проект комфортного двухэтажного коттеджа

План второго этажа


Холл — 3,42 м2
Спальня — 16,90 м2
Гардероб — 3,08 м2
С/у — 3,50 м2
Спальня — 8,16 м2
Проект комфортного двухэтажного коттеджа Проект комфортного двухэтажного коттеджа Проект комфортного двухэтажного коттеджа Проект комфортного двухэтажного коттеджа

Модификации проектов

Внесение изменений и привязка к участку строительства

В любой из проектов от компании VIPplan - Армавир по вашему желанию могут быть внесены изменения в материалы стен, материалы наружной отделки дома, а также будет произведена адаптация проекта под конкретный регион строительства (с учетом грунтов региона, геологических особенностей вашего участка и местных климатических условий) - БЕСПЛАТНО !!! (кроме проектов со скидкой и проектов наших партнеров).

Любой из проектов, размещенных на сайте armavir.vipplan.ru мы можем выполнить из требуемых вам строительных материалов: ячеистый бетон (газобетон, пеноблок), керамоблок, кирпич, шлакоблок, бетонный блок, дерево (брус, клееный брус), каркасная технология (деревянный каркас, металлокаркас (ЛСТК)).

Фасад дома и его наружную отделку так же возможно выполнить с применением различных облицовочных материалов: структурной штукатурки, (с утеплителем и без), сайдингом (пластиковый или металлосайдинг), фиброплитами, кирпича.

 
6 Избранные
проекты

Доставка проектов по России: Москва (Московская область), Санкт-Петербург (Ленинградская область), Краснодар, Ростов-на-Дону, Ставрополь, Сочи, Волгоград, Новосибирск, Белгород, Брянск, Воронеж, Саратов, Хабаровск, Астрахань, Нальчик, Владикавказ, Екатеринбург, Тюмень, Самара, Нижний Новгород, Казань, Пермь, Уфа, Челябинск, Красноярск, Ханты-Мансийск, Иркутск, Курган, Оренбург, Омск, Томск, Барнаул, Новокузнецк, Кемерово, Абакан, Чита, Якутск, Южно-Сахалинск, Петропавловск-Камчатский и страны ближнего зарубежья: Белоруссия, Украина, Казахстан