Добро пожаловать на http://vipplan.ru

Випплан Армавир - это тысячи проектов домов в нашем каталоге!

Вы всегда сможете найти для себя проект дома вашей мечты! Даже если этого не случилось, мы готовы в любую минуту предложить проект индивидуального дома.

Забыли пароль?
Вы еще не регистрировались?

Перейдите по ссылке ниже на страницу регистрации.

Регистрация...

Внимание!!!

В проектную документацию могут быть внесены изменения любой сложности, в соответствии в Вашими пожеланиями!

Полезные статьи

Выбор участка для строительства дома

Если вы решили приобрести участок земли и построить на нем дом или дачу. То данная статья специально для вас. А так же мы поможем вам в выборе проекта для выбранного вами участка....

Фундамент под гараж

Обычно фундаменты под гараж делаются из бетонного раствора и заливаются, как монолит. Гаражные фундаменты так же можно укладывать из бетона с применением бутового камня. Такие фундаменты тоже считаются монолитными. В этом случае происходит экономия бетона....

Проекты домов и коттеджей > Каталог проектов домов > Проект индивидуального одноэтажного жилого дома с мансардой и гаражом Vg1389

Проект индивидуального одноэтажного жилого дома с мансардой и гаражом Vg1389

Проект индивидуального одноэтажного жилого дома с мансардой и гаражом
Зарегистрируйтесь

Проект № Vg1389


Техническое описание
Общая площадь: 207.98 м2
Жилая площадь: 123.96 м2
Высота здания: 8.71 м
Размеры дома: 16.46м×9.96м
Кол-во комнат: 6
Цокольный этаж: нет
Гараж: нет
Мансарда: есть

Kонструкция
Фундамент: ленточный, монолитный ж/б
Перекрытия: монолитное, ж/б
Материал стен: Газобетон

Архитектурный раздел
Конструктивный раздел
Инженерный раздел
АР+КР - 64 000 (Со скидкой 20%)
АР+КР+ИР - 136 800 (Со скидкой 50%)
Проект индивидуального одноэтажного жилого дома мансардой и гаражом с размерами здания 16,46x 9,96 м. Наружная отделка здания – облицовочный кирпич. Фундамент – ленточный, монолитный, ж/б. Наружные стены – газобетонный блок, вентзазор, облицовочный кирпич. Наружные стены гаража –кирпич рядовой , вентзазор, облицовочный кирпич. Внутренние стены — кирпич рядовой и газобетонный блок. Перегородки – кирпич рядовой и гипсовый блок. Пол первого этажа - пол по грунту. Межэтажное перекрытие - монолитное, ж/б. Крыша многоскатная. Кровля – битумная черепица. Окна - металлопластиковые.
Генплан застройки участка / Паспорт проекта 7000 руб / 10000 руб
Инженерный раздел (полный) 72800 руб (104000 руб)
Смета на строительство 52000 руб
Теплотехнический расчет материалов стен Бесплатно
Стоимость проекта со незначительнми изменениями 74800 руб
Стоимость проекта со средними изменениями* 90400 руб
Стоимость проекта со значительными изменениями** 94600 руб

План первого этажа


Тамбур — 4,32 м2
Холл — 6,65 м2
Гостиная — 12,27 м2
С/у — 2,51 м2
Кухня — 5,55 м2
Гостевая — 9,10 м2
Бойлерная — 6,51 м2
Гараж — 17,98 м2

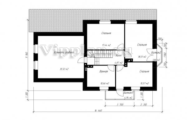
План мансардного этажа


Холл — 9,73 м2
Спальня — 10,08 м2
Спальня — 12,29 м2
Спальня — 18,45 м2
Гардероб — 7,92 м2
С/у — 7,84 м2
Проект индивидуального одноэтажного жилого дома с мансардой и гаражом Проект индивидуального одноэтажного жилого дома с мансардой и гаражом Проект индивидуального одноэтажного жилого дома с мансардой и гаражом Проект индивидуального одноэтажного жилого дома с мансардой и гаражом

Модификации проектов

Внесение изменений и привязка к участку строительства

В любой из проектов от компании VIPplan - Армавир по вашему желанию могут быть внесены изменения в материалы стен, материалы наружной отделки дома, а также будет произведена адаптация проекта под конкретный регион строительства (с учетом грунтов региона, геологических особенностей вашего участка и местных климатических условий) - БЕСПЛАТНО !!! (кроме проектов со скидкой и проектов наших партнеров).

Любой из проектов, размещенных на сайте armavir.vipplan.ru мы можем выполнить из требуемых вам строительных материалов: ячеистый бетон (газобетон, пеноблок), керамоблок, кирпич, шлакоблок, бетонный блок, дерево (брус, клееный брус), каркасная технология (деревянный каркас, металлокаркас (ЛСТК)).

Фасад дома и его наружную отделку так же возможно выполнить с применением различных облицовочных материалов: структурной штукатурки, (с утеплителем и без), сайдингом (пластиковый или металлосайдинг), фиброплитами, кирпича.

 
6 Избранные
проекты

Доставка проектов по России: Москва (Московская область), Санкт-Петербург (Ленинградская область), Краснодар, Ростов-на-Дону, Ставрополь, Сочи, Волгоград, Новосибирск, Белгород, Брянск, Воронеж, Саратов, Хабаровск, Астрахань, Нальчик, Владикавказ, Екатеринбург, Тюмень, Самара, Нижний Новгород, Казань, Пермь, Уфа, Челябинск, Красноярск, Ханты-Мансийск, Иркутск, Курган, Оренбург, Омск, Томск, Барнаул, Новокузнецк, Кемерово, Абакан, Чита, Якутск, Южно-Сахалинск, Петропавловск-Камчатский и страны ближнего зарубежья: Белоруссия, Украина, Казахстан